
PROFIL
Dienstleistungen im Architekturwesen für Architektur-/ Planungsbüros, Bauunternehmen, Bauträger, Immobilien-/ Wohnungsbauunternehmen sowie private Bauherren. Das Hauptaufgabengebiet umfasst die Leistungen der HOAI (Gebäude) der Leistungsphasen 1 bis 5.
Schwerpunkte:
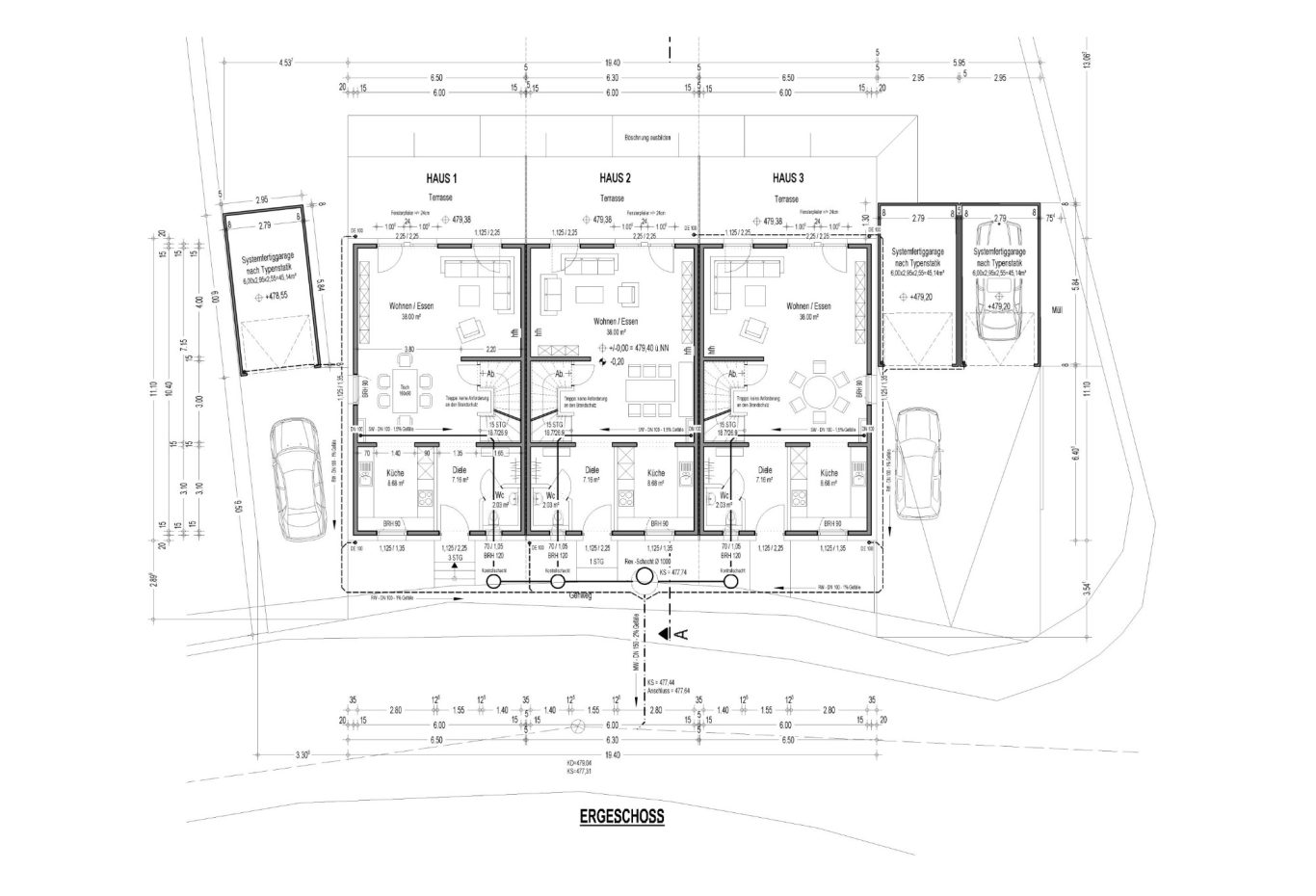
- freifinanzierter und öffentlich geförderter Wohnungsbau
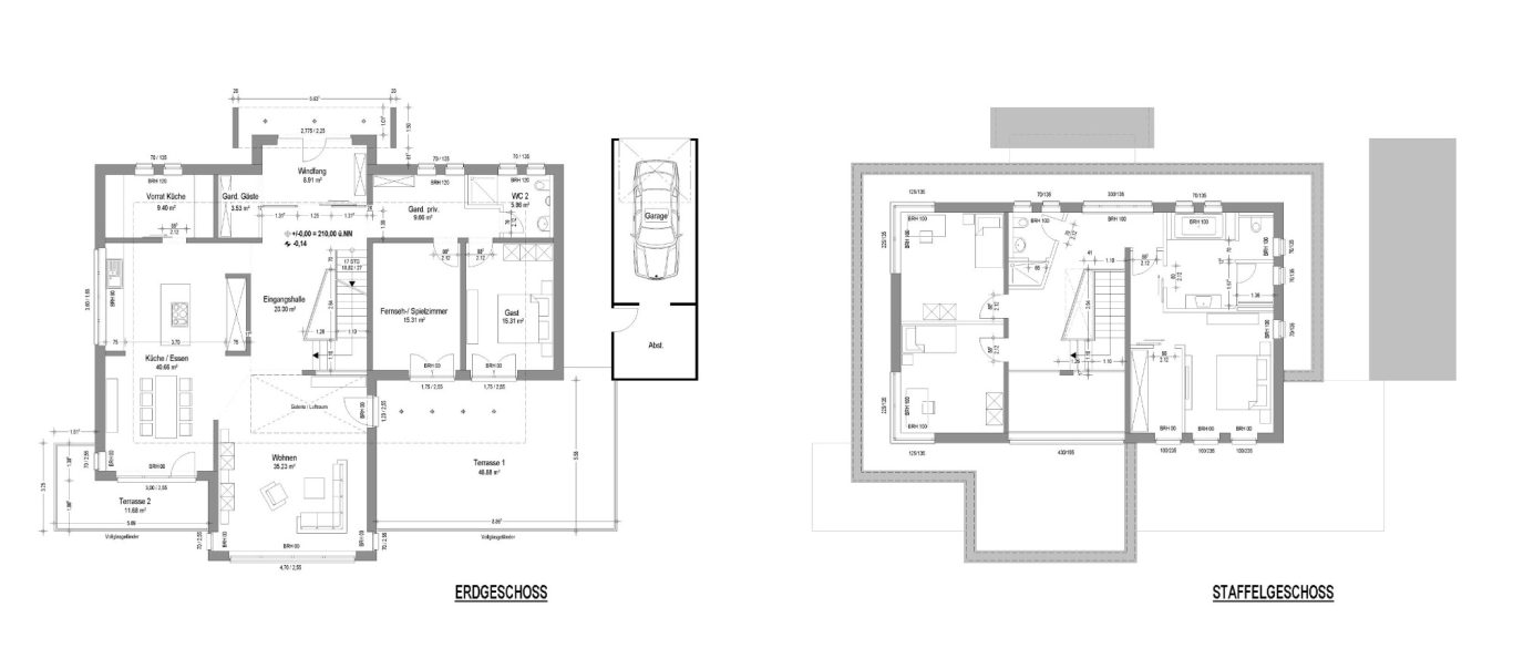
- Einfamilien-, Reihen- und Mehrfamilienhäuser
- Kindertagesstätten
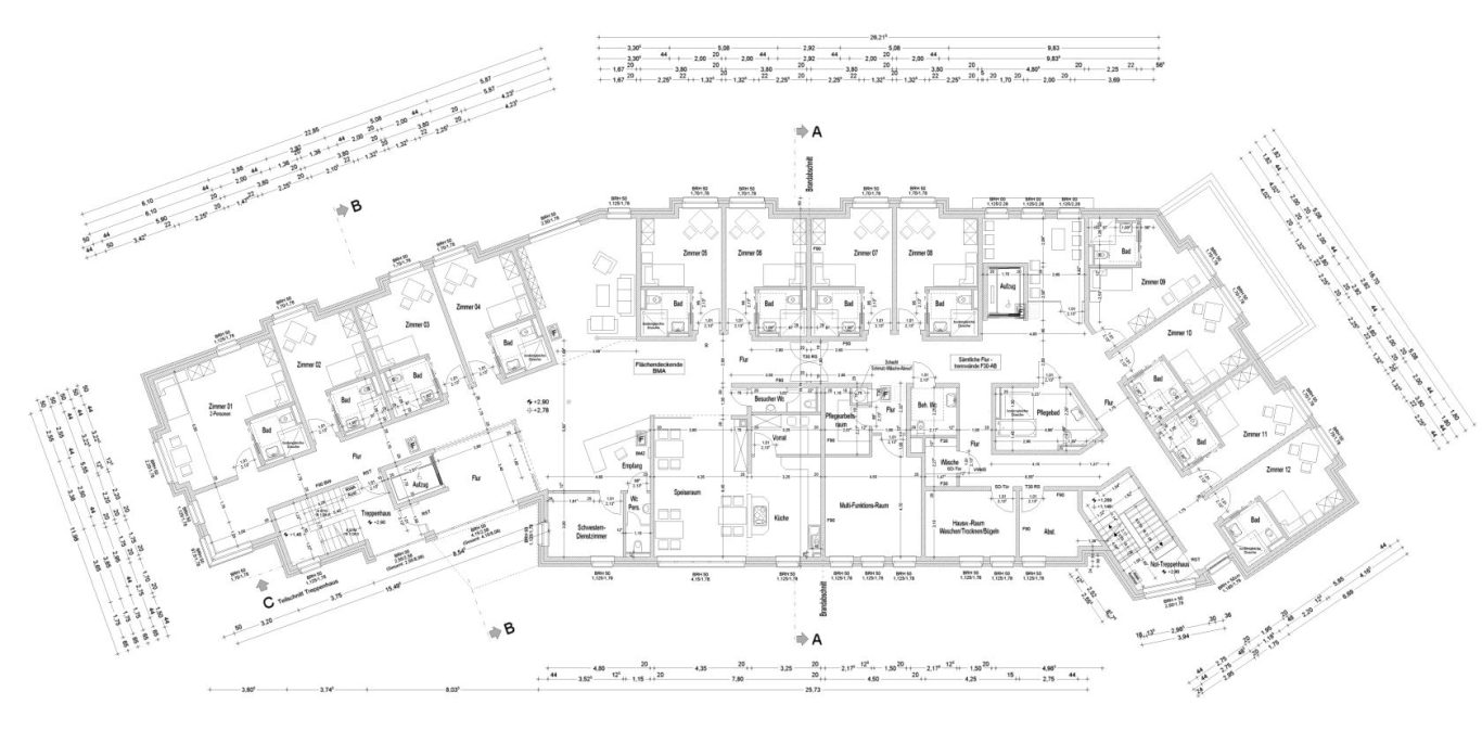
- Alten- und Seniorenpflegeheime
- Verwaltungs- und Gewerbebauten
- Sport- und Freizeitgebäude
LEISTUNGEN
Erstellung unterschriftsreifer Bauantragsunterlagen (Grundrisse, Schnitte, Ansichten, Formulare und Berechnungen) nach Planungsvorgaben des Auftraggebers.
Leistungsphasen für Gebäude:
- Grundlagenermittlung
- Vorplanung
- Entwurfsplanung
- Genehmigungsplanung
- Ausführungsplanung
- Umbauplanung
- Digitalisierung von Papier-/ Bestandsplänen
- Präsentationspläne / Unterlagen
- Abgeschlossenheit-/ Teilungserklärung
- Übersichtspläne / Freianlagenplanung / Bebauungspläne
- Abbruchpläne / Abbruchanträge
- 3D-Planung / Visualisierung
- Detailplanung
- Berechnungen
- Erstellung von Flucht- und Rettungsplänen
- Beratung und Vermittlung von Baufachleuten (Statiker, Wärme- und Schallschutzgutachter, Brandschutzgutachter, Vermesser und Fachplaner)
Als CAD- Programm kommt ALLPLAN (aktuelle Version) von Nemetschek zum Einsatz.
Weitere Leistung / Optionen:
Erbringen der Architektenleistungen der HOAI - Leistungsphasen 1 bis 5 - durch die Planungsgesellschaft Buderus & Lange mbH.
Eine gute Zusammenarbeit zwischen allen an der Planung beteiligten Personen sehe ich als Grundvoraussetzung an. Durch meine langjährige Erfahrung kann ich folgende Leistungen anbieten:


















